Australia

# Sold contact agent

16 & 14 Laughlin Street, Kingston, Qld 4114

# Location

Description

ONCE-IN-A-LIFE-TIME DEVELOPMENT OPPORTUNITY!!


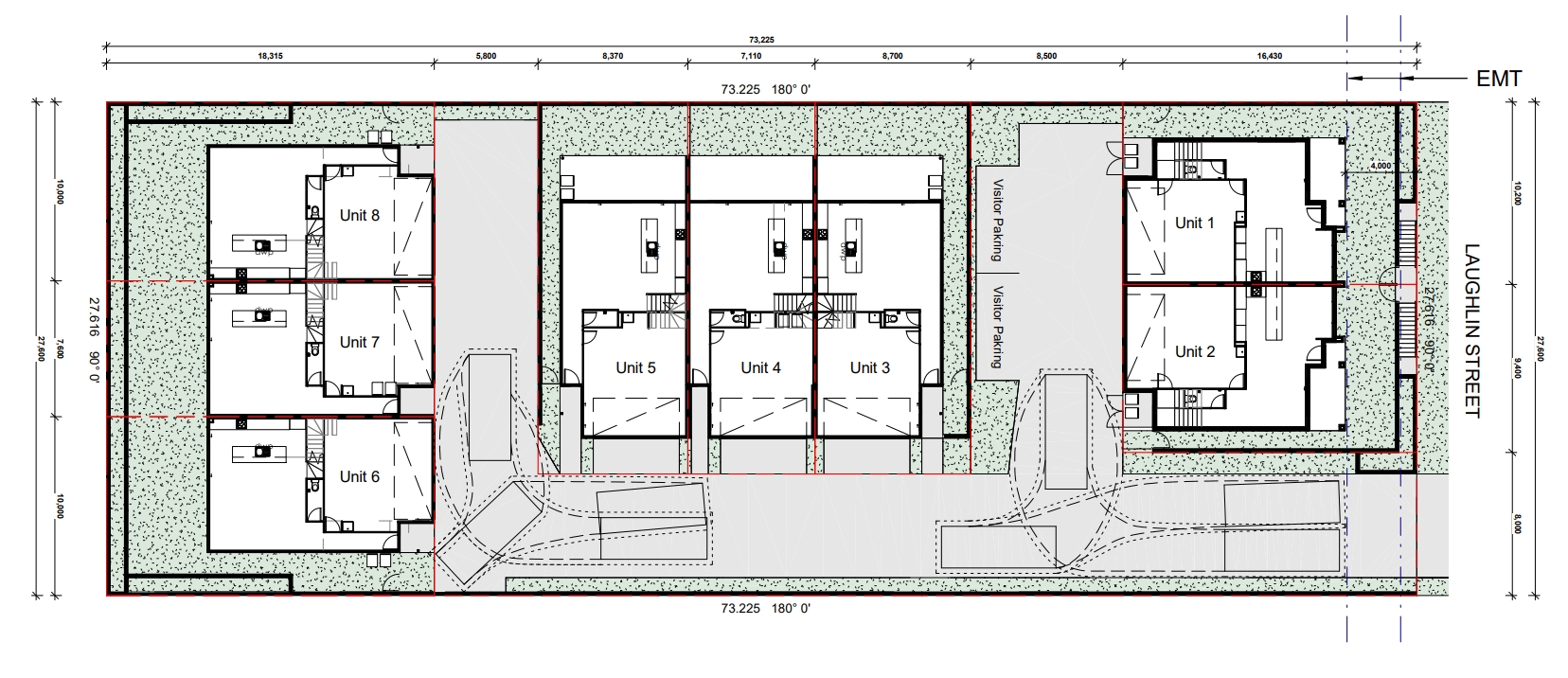
14 & 16 Laughlin st Kingston DA APPROVED for 8 x 3 BEDROOM TOWNHOUSES WITH A BONUS OF TWO EXISTING PROPERTIES WITH ALREADY RENTS COMING IN!!

14 & 16 Laughlin St Kingston WITH OVER HALF AN ACRE OF REAL ESTATE!!

See link for all approval documentation:

https://devet.loganhub.com.au/#/applications/ MCUC/13/2020.

This a rare chance to secure a valuable type of real estate which comes extremely rare in the market, making it an once-in-a-lifetime opportunity!

Both properties have a combined land size of 2018m2 (over half an acre), with already 2 existing homes on separate titles obtaining $915pw in rent.

This property has extraordinary potential in terms of its future use. One of its most enviable assets is that the current owners have obtained Development Approval (DA Approval) for 8 x 3-bedroom townhouses, which typically takes time, effort and money to achieve.

Another option is to keep the 2 existing properties and subdividing the middle section by taking part of each of the 2 titles, building duplexes while obtaining rent (any changes to the Da approval is subject to approval).

PROPERTY FEATURES:

+ Over half an acre, 2018m2 with DA approval for 8 Townhouses, 3 bed, 2 bath, double garages.

+ Walking distance to Groves Christian College and close to Kingston State schools

+ Minutes to Logan Hospital and Griffith University (Great For medical or Uni Students Renting)

+ 30 minutes to the CBD via the M1.

+ 1 house has 3 bed, 1 bath, 2 garage space. The other house has 3 bed, 2 bath, rumpus, sparkling in ground pool, kitchenette with a separate living area.

+ Close and walking distance to transport, shops and more! Call the agent now before you miss out on a great opportunity! Sales Agent: Glynis Binder

0433158018

View More #

Floor Plans

Location

  • Contact the agency

    To request an inspection

  • # Call # Email

Glynis Binder

Agent Name

# Report Listing

Looking for a property?

  • Top listings
  • Investment
  • Development
  • Personal home
  • Price reports
  • Suburb reports

Do you own a property?

  • Place a free listing
  • Services for private advertisers
  • Guide to selling your home
  • Insurance
  • Improve the photos of your listing
  • Value your property for free

Are you a real estate proffesional?

  • Publish your agencies properties
  • Already a client? Log into your account
  • Advertising on Australian Real Estate
  • Australian Real Estate data technology for property insights
  • Real Estate courses